Solingen

Mehrfamilienhaus

Solingen

Mehrfamilienhaus

Solingen

Mehrfamilienhaus

Projektdetails

Projektdetails

Projektdetails

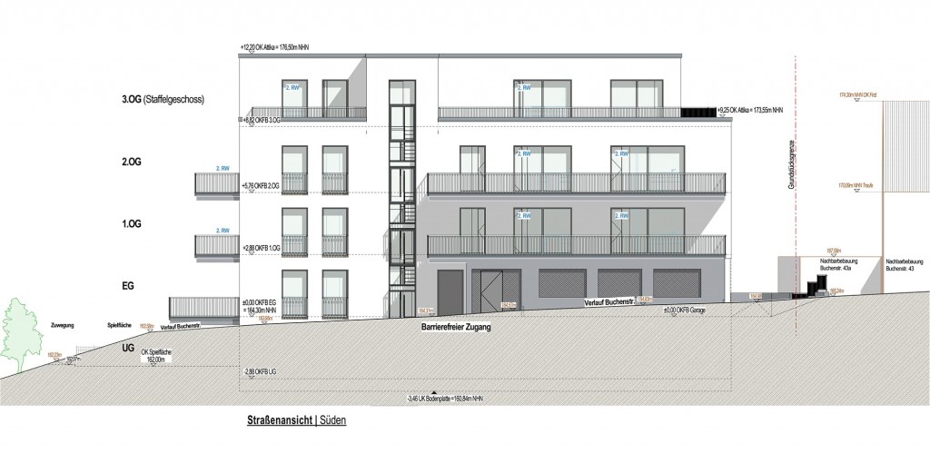
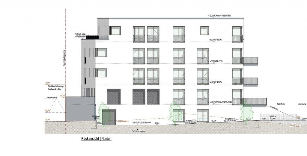
Projekt

Neubau Mehrfamilienhaus

Projektzeit

Frühjahr 2024 bis Sommer 2026

Leistungen

Baumanagement

Bilder