Solingen

Neubau MFH 10 Parteien

Solingen

Neubau MFH 10 Parteien

Solingen

Neubau MFH 10 Parteien

Projektdetails

Projektdetails

Projektdetails

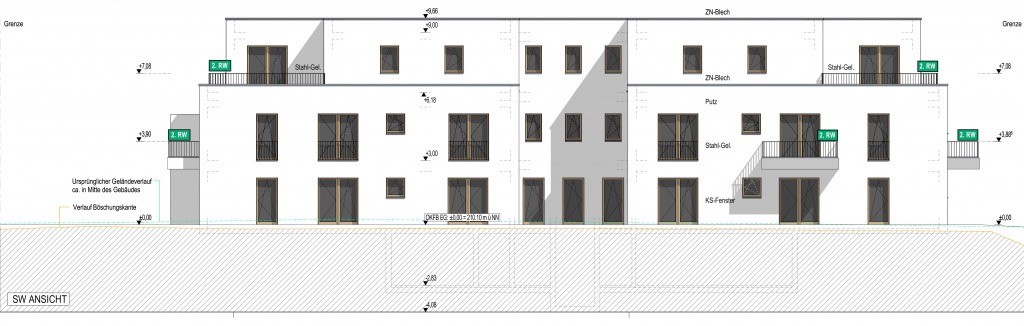
Projekt

Planung eines Mehrfamilienhauses

Projektzeit

noch in Planung

Leistungen

Generalübernehmer

Einblicke in unsere Arbeit